bâtiment artisanal, meinier

infos

Maître d’ouvrage  Fondation intercommunale de la Pallanterie
Lieu  La Pallanterie, Genève
Dates projet  1997 - 2000
Dates réalisation  2000 - 2001
Surface  5'545 m2
Volume  22'220 m3
Programme  Hôtel industriel
Team projet  Philippe Meier, Frank Herbert, Thomas Bolliger, David Reffo, Rachel Hamel 
Architecte associé  Thierry Moreillon
Ingénieur civil
  Michel Paquet
Ingénieur cvs  Erte
Ingénieur e  Dumont-Schneider
Ingénieur façade  BCS
Géomètre  HKD Géomatique
Photographe  Jean-Michel Landecy

 

 

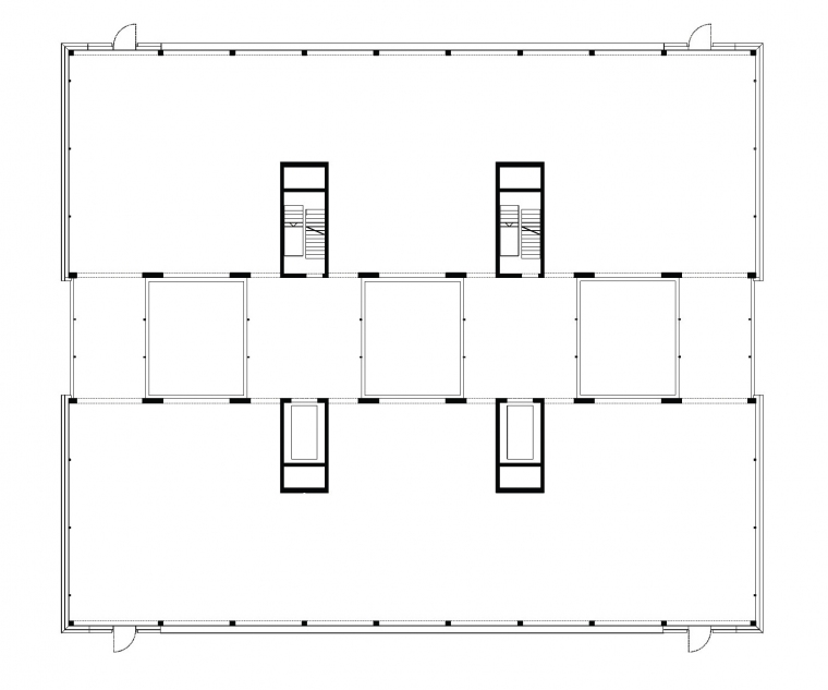
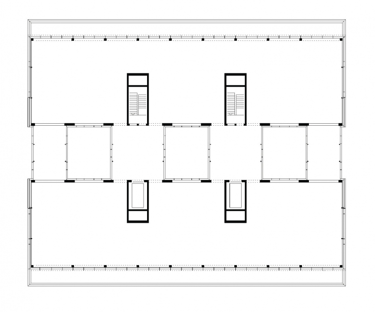
Le projet s’inscrit dans une nouvelle zone artisanale et industrielle et se base sur un plan directeur. Le concept d’implantation met en place une distribution claire des personnes et des marchandises, en mettant l’accent sur la facilité d’accès des véhicules, au moyen d’une rue intérieure, partiellement à ciel ouvert, qui offre un regard sur le paysage agricole environnant.
Le bâtiment comprend trois niveaux de surfaces artisanales en liaison directe avec des dépôts au sous-sol. La coupe basée sur un entablement métrique offre trois différentes hauteurs d’étage, la plus importante se situant au niveau du terrain naturel. Le double système distributif situé au centre du projet confère une grande polyvalence dans l’utilisation des surfaces artisanales. La structure porteuse du bâtiment est entièrement en béton armé, et très largement préfabriquée. 

 

 

Les façades expriment à travers des lignes horizontales en aluminium, la règle dimensionnelle du projet : sur l’extérieur la peau est réalisée en panneaux contreplaqués Méranti, inscrits dans des profilés ; sur la rue intérieure elle est composée de vitrages translucides et d’éléments ouvrants en verre transparent. Les trois cours à ciel ouvert sont couronnées par des éléments de brise soleil en aluminium qui découpent l’azur en de fines striures géométriques.