villa b, collonge-bellerive

infos

Maître d’ouvrage  Privé
Lieu  Collonge-Bellerive, Genève
Dates projet  2012 - 2014
Dates réalisation  2014 - 2017
Surface  310 m2
Volume  1'635 m2
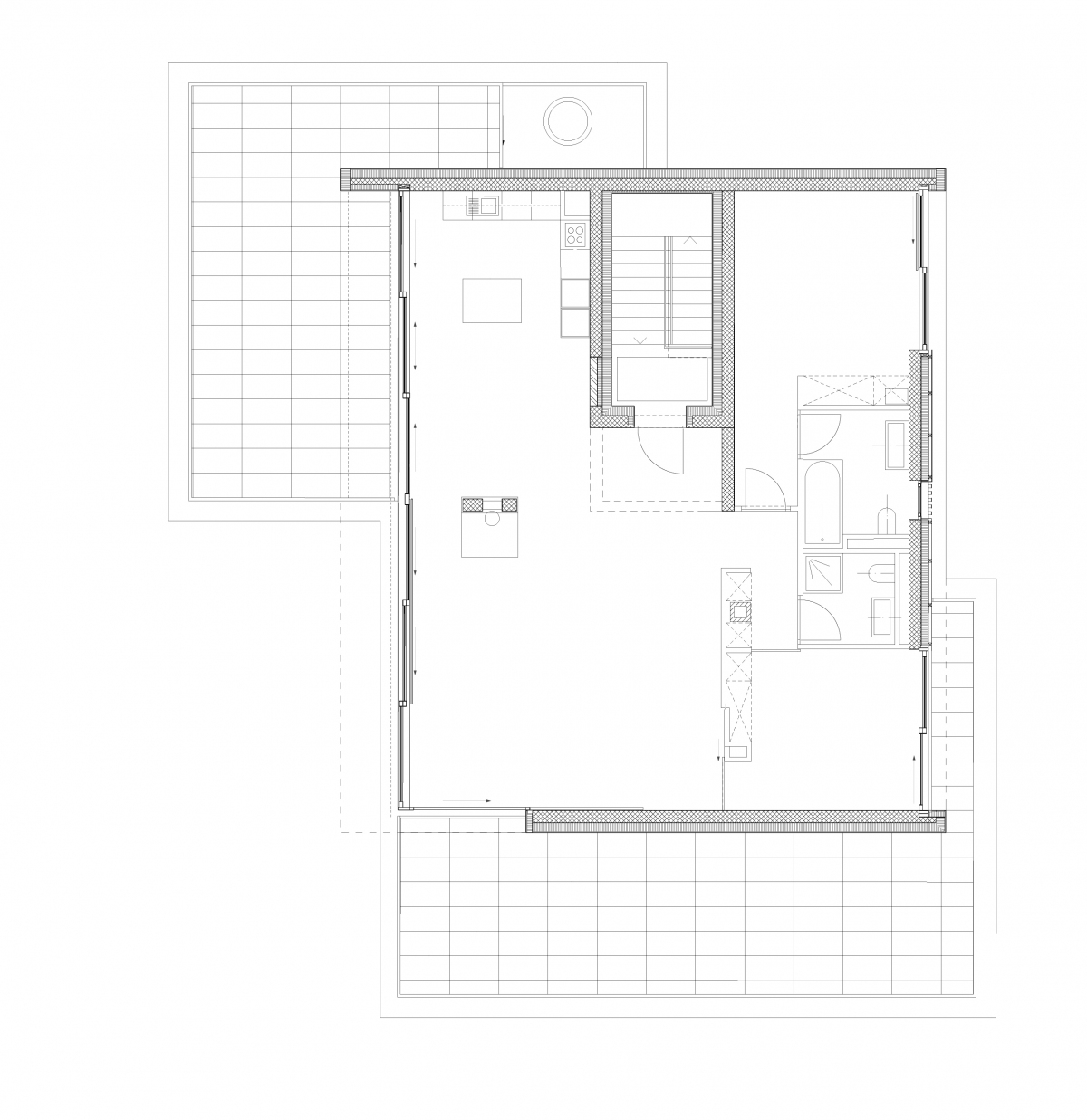
Programme  Villa à deux logements
Team projet  Philippe Meier, Martin Jaques, Ana-Inès Pepermans, Ariane Poncet, Rafael Eloi, Arnaud Mottet, Teresa Blanco, Laurence Boye, Diego Osorio Calvo 
Ingénieur civil  Ingenieri Pedrazzini Guidotti
Ingénieur cv  Dominique Hirt
Ingénieur e  Dumont Schneider
Géomètre  Christian Haller

 

 

Le projet se base sur l’hypothèse de démolir partiellement la villa pré-existante, datant des années 1950, et n’en conserver que le sous-sol permettant de maintenir un cèdre centenaire protégé. Le projet a été pensé pour mettre en évidence les qualités paysagères du lieu : l’arbre et les ouvertures visuelles vers le lac et les Alpes. Pour se distancer des parcelles voisines proches, le projet cherche un rapport transversal est-ouest, en offrant des regards sur deux cotés.
La solution présente un jeu de ‘décomposition volumétrique’ qui permet des décalages appropriés à la programmatique du projet. Au rez-de-chaussée, comme à l’étage, cette solution permet l’ouverture des vues vers le lac ainsi qu’une protection contre la bise. Le volume met en valeur la transparence et le rapport entre les différents points d’intérêt du paysage. La structure est pensée en terme de murs-voiles en béton qui accompagnent la composition ‘plastique’.

 

 

Le projet formalise deux programmes d’habitation indépendants et superposés, l’étage étant dévolu à une famille et le rez-de-chaussée à une autre. Ce dernier se compose de deux volumes décalés. Les deux accès se situent au point de glissement sous un grand espace couvert. On monte à l’étage par un escalier extérieur, où un volume simple se situe à l’intersection entre deux terrasses, l’une s’ouvrant pleinement à l’ouest, vers le lac, l’autre se situant au sud-ouest, à l’abri du vent. En effet, le décalage des volumes a permis une réinterpretation de la villa existante en tant que dispositif de protection contre la bise, pour répondre à la demande des clients de disposer d’espaces extérieurs utilisable le plus longtemps et souvent possible tout au court de l’année.