salle communale, 1er prix, commugny

infos

Maître d’ouvrage  Commune de Commugny
Lieu  Commugny, Vaud
Concours  2000 (1er prix)
Dates projet  2000 - 2001
Dates réalisation  2002 - 2003
Surface  1'035 m2
Volume  4'200 m3
Programme  Rénovation salle 'Genoud' et extension
Team projet  Philippe Meier, Frank Herbert, Martin Jaques, Thomas Bolliger, Nicolas Briiffod, Marc de Dompierre, Laurent Sonderegger, Samir Zid
Ingénieur civil  Thomas Jundt
Ingénieur cv  Bois & Gaudichon
Ingénieur e  MAB Ingénierie
Ingénieur s  BTH Schumacher 
Acousticien  AAB Styjenski & Monti
Géomètre  Olivier Peitrequin
Photographe  Claudio Merlini

 

 

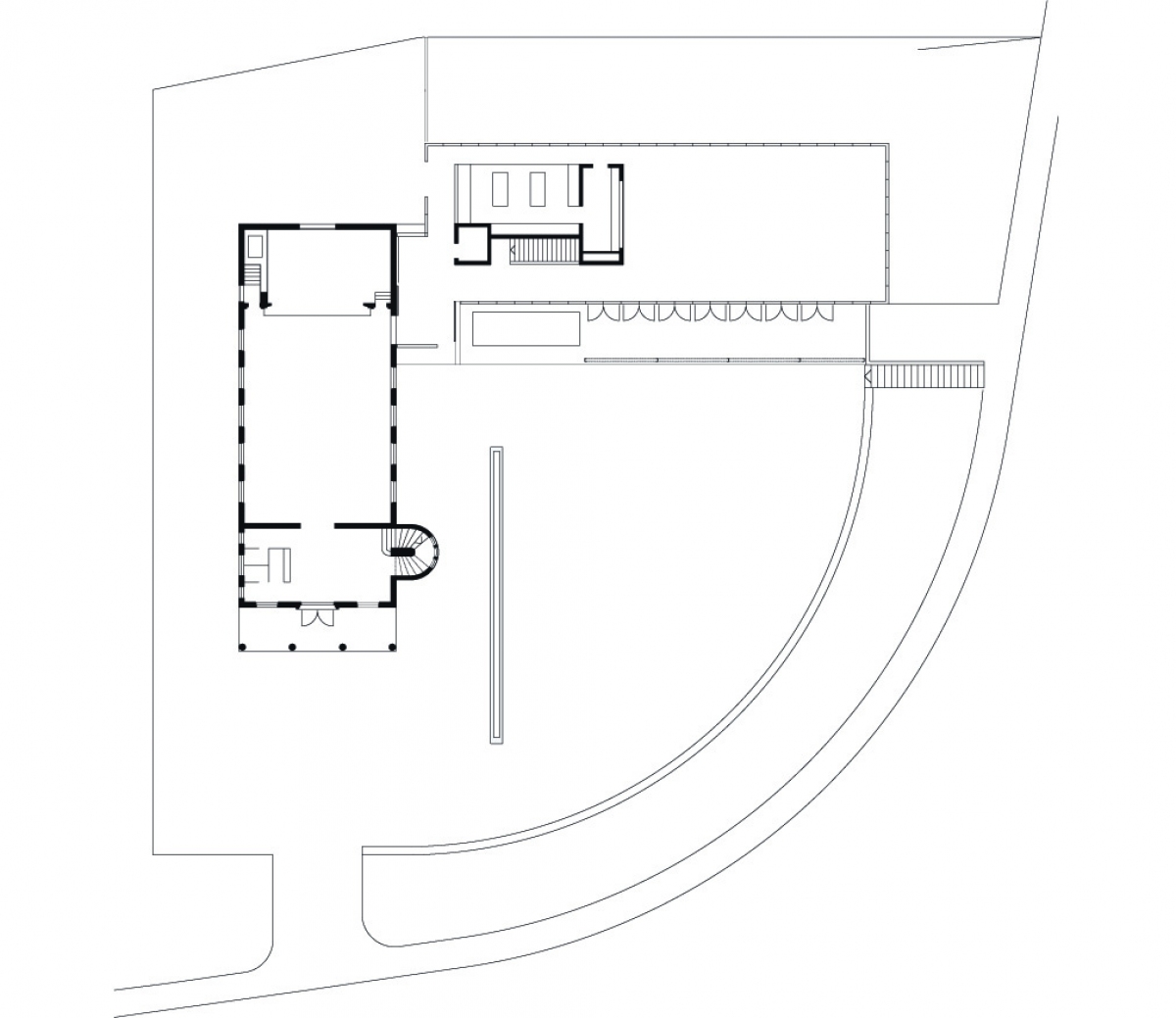
L’extension de la salle communale de Commugny se positionne de manière perpendiculaire à l’ancienne salle, matérialisant sur le terrain l’endroit précis de la rupture de pente. Cette implantation confère au grand espace extérieur ainsi libéré, un statut collectif à la disposition des deux édifices. 
Le nouvel objet architectural se démarque de l’existant par sa matérialité, un 'prisme pur' en verre. Son écriture résolument contemporaine dialogue avec l’ancienne salle 'Genoud', sans entrer en concurrence avec son expression architecturale caractéristique d’un langage 'proto-moderne'. Au mur en crépi rustique, percé de fenêtres à la française, répond une peau en verre translucide, scandée par le rythme vertical des montants en aluminium éloxé. A l’éclairage naturel donné par l’alternance 'plein-vide' de l’une, coïncide une lumière diffuse et constante, conférée par le traitement à l’acide des vitrages.

A l’espace majeur existant conclu par un plafond à caissons correspond une pièce plus géométrique, dont l’abstraction est rendue de manière encore plus manifeste par la présence du textile qui décrit sa rive. 
La nouvelle salle communale, constituée de deux éléments hétérogènes, s’offre aux futurs utilisateurs comme une agrégation de matières qui est le fruit d’une réflexion inhérente liée à l’époque de leur conception respective. Leur confrontation dans le paysage se veut une attitude respectueuse de l’identité du lieu et, en même temps, garante d’une image clairement attachée à une institution collective.