résidence sénior, etoy

infos

Maître d’ouvrage  Privé
Lieu  Etoy, Vaud
Dates projet  2005 - 2006
Dates réalisation  2007 - 2008
Surface  5'000 m2
Volume  17'735 m3
Programme  EMS de 80 chambres
Team projet  Philippe Meier, Jean-Daniel Pasquettaz, Ana-Inès Pepermans, Thomas Bolliger, Sylwia Braun, Tiago Mendes,  Joana Pimenta, Giovanna Trotta
Ingénieur civil  Amsler & Bombeli
Ingénieur cv  Weinmann Energies
Ingénieur s  Ponzio & Zanini-Baechli
Ingénieur e  Projelectro
Acousticien  Scherler
Géomètre  E. L. Rossier
Photographe  Yves André

 

 

Le projet est implanté dans le site de 'Littoral Parc' qui a souvent été contesté pour sa surdensité d’activités commerciales, dans un lieu stratégique de la riviera vaudoise. L’ambition du plan directeur qui a aussi été conçu pour l’occasion, est de proposer une alternative programmatique et paysagère à la réalité bâtie d’une zone commerciale adjacente. Le projet s’invente un monde plus unitaire, plus accueillant, où architecture et nature cohabitent.
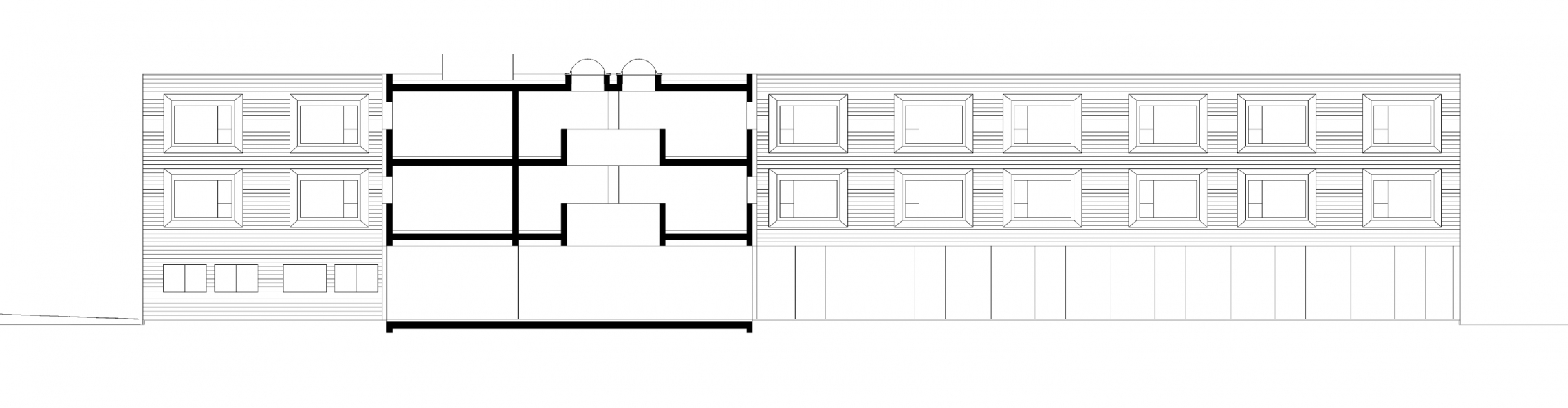
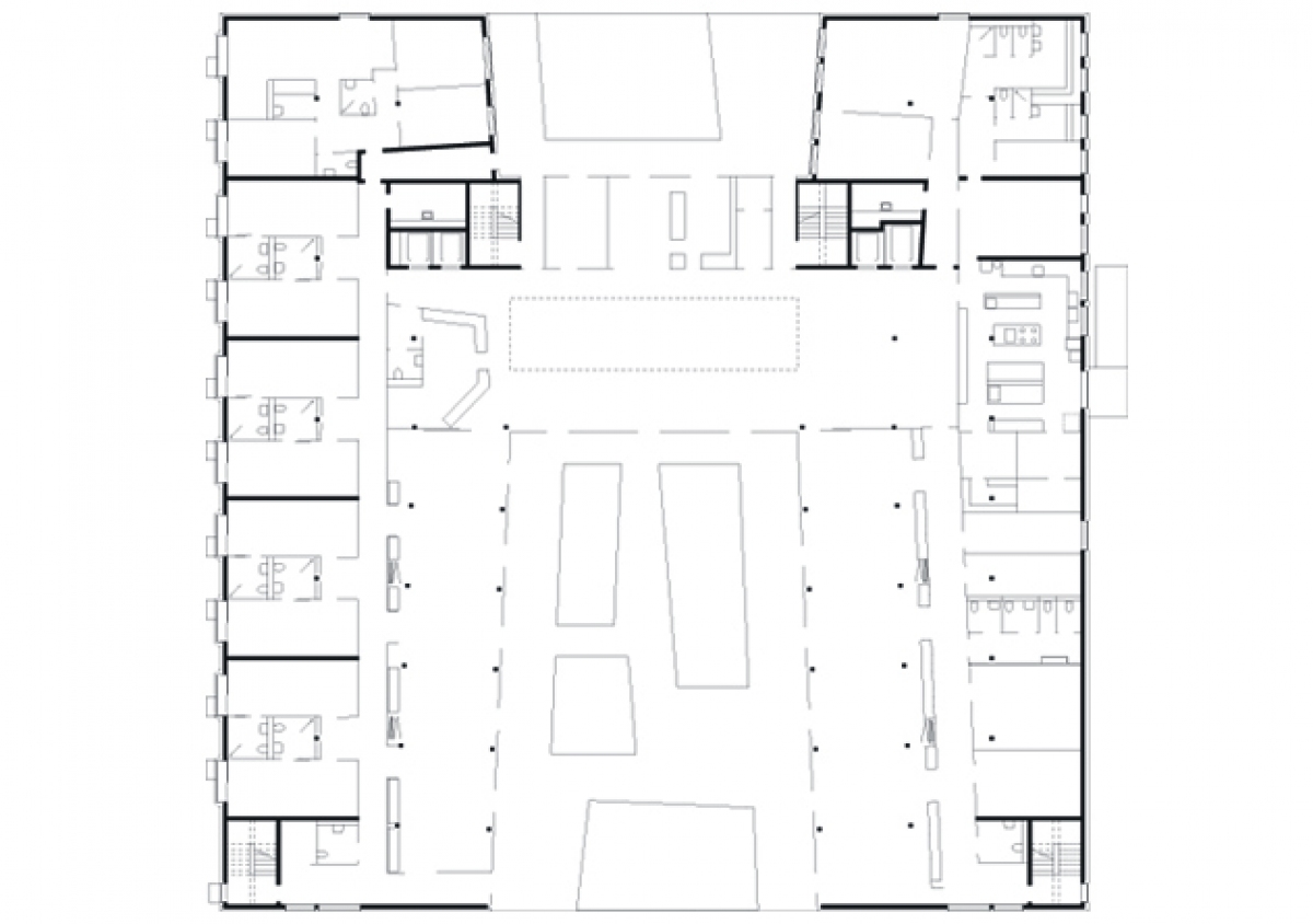
Le nouvel Etablissement Médico Social se présente sous la forme d’un bâtiment en 'H' qui s’adapte au programme spécifique d’un foyer pour personnes âgées. Le centre de la composition, avec son atrium ouvert sur les trois niveaux, regroupe les services et les lieux de séjour des pensionnaires. Le rez-de-chaussée, qui accueille l’ensemble des espaces de jour, est traité de manière la plus transparente possible, pour offrir un prolongement direct sur l’extérieur, tant du point de vue de l’usage que du regard. 

 

 

Les chambres sont installées dans les ailes. Elles sont articulées autour d’un noyau sanitaire, qui permet de libérer l’espace domestique sur toute sa largeur et de l’orienter vers la fenêtre. Cette dernière est dessinée sous la forme d’un bow-window, qui, pour le résident, fait office d’assise face au paysage.
La volumétrie est légèrement pliée de quelques degrés, comme pour accueillir le paysage environnant dans deux cours extérieures au nord et au sud. Les façades en tôle ondulée perforée, confèrent à l’ensemble une forme de légèreté et de vibration, qui inscrit l’objet dans le parc.