quartier 'cour de gare', sion

infos

Maître d’ouvrage  Privé
Lieu  Sion, Valais
Dates projet  2015 - 2018
Dates réalisation  2019 - 2023
Surface  62'500 m2
Volume  203'000 m3
Programme  302 appartements, bureaux, commerces, parking souterrain 600 places
Team projet Philippe Meier, Martin Jaques, Ana-Inès Pepermans, Rafael Eloi, Istabrak Bellara, Lennart Steemans, Amanda Wormsbecker, Amalia Jimenez, Clément Meeùs, Camille Wetzel, Michael Costa Valente, Xavier Fromaigeat, Teresa Guedes, Mathieu Meyer, Camille Perron, Candide Jacquet, Othilie Gal, Poli Gyaurova, Loïc Steiner, Tiago Queiroz,Anouar Hajjar, Paul Crevel, Jean Dubillot, Marcele Rocon Souza
Architectes associés  Archidée, Cagna + Wenger, Pascal Varone (projet), cw architectes (exécution)
Architecte plan de quartier  bonnard woeffray
Architectes paysagistes  Atelier Grept
Ingénieurs civils  Kurmann Cretton Ingénieurs (projet), Gasser & Masserey, Holinger, Guillaume Favre ingénieurs, Willi ingénieurs (exécution)
Ingénieur cvs  Tecnoservice Engineering, Sigma (exécution)
Ingénieur e  RTM (projet), BEE et DPE (exécution)
Ingénieur sécurité  Hautle Anderegg+Partner (projet), ECOFire concept (exécution)
Ingénieur OPAM  Ernst Basler + Partner (projet)
Acousticien  bS Lucane (projet), D'Silence Acoustique (exécution)
Physique du bâtiment  Physeos
Ingénieur environnement  CSD
Hydrogéologue  BEG (projet), Karakas & Français (exécution)
Géomètre  Géomètres Centre (projet), Geosat (exécution)
Artistes  Pascal Seiler (jeux), maa (installation patio blanc)
Images  imagine.we.create
Maquettes  Atelier C1
Photographes  Yves André (2019), Nicolas Sedlatchek (2025), Adrien Barakat (2025)

 

 

Situé sur une ancienne friche industrielle délaissée de nombreuses années et envahie par un grand parking, le quartier cour de gare bénéficie d’une situation exceptionnelle en plein centre à proximité directe de la gare. L’enjeu de ce projet est d’assurer la couture tant avec la ville historique située au Nord que le nouveau quartier en développement disposé au-delà des voies ferrées au Sud et bientôt relié au moyen d’une passerelle sur les rails. La tête Est du site présente un complexe public intégrant une salle de spectacle et un hôtel et sera conçu par le bureau d’architecte lauréat du mandat d’études parallèles.

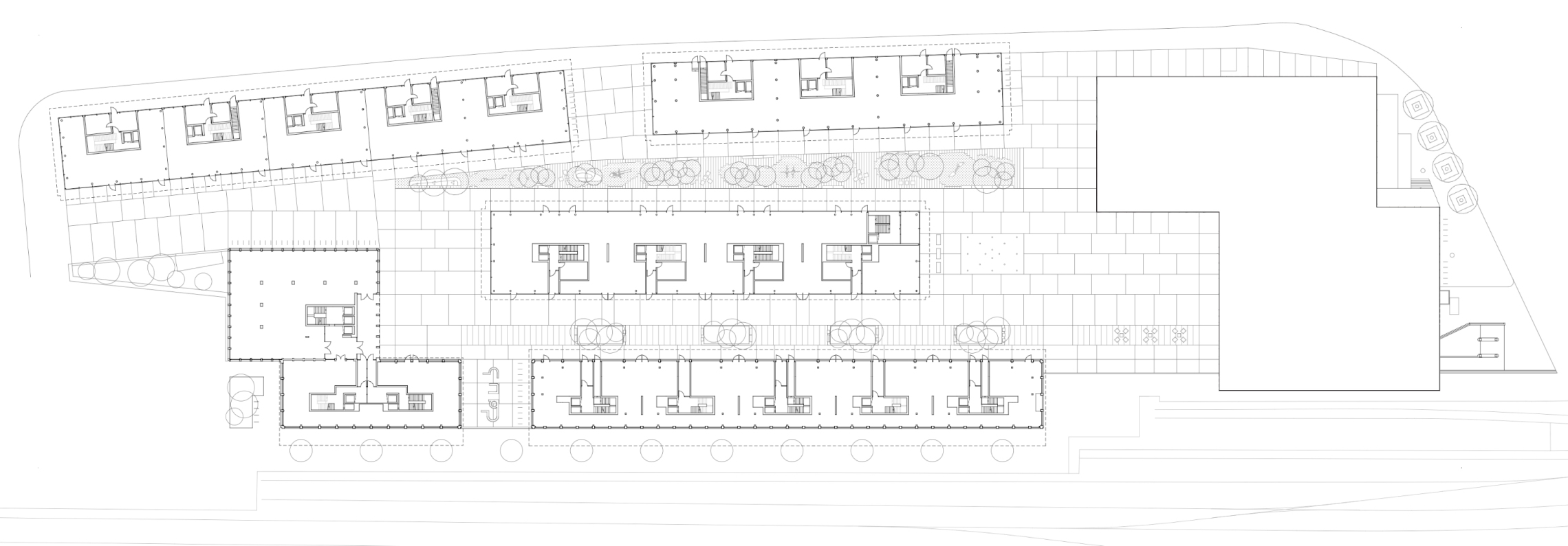
Basé sur un plan de quartier issu du mandat d’études parallèles pour lequel l’agence maa fut finaliste en 2012, le projet comprend une série de six bâtiments dont la plupart sont destinés aux logements collectifs. Implantés sur un rez-de-chaussée artificiel - comprenant deux niveaux de parking pour un total de plus de six cent places - les volumes offrent une grande surface commerciale en rapport avec la gare et le bas de la ville de Sion.

La situation présente des contraintes importantes liées à la proximité des voies ferrées (OPAM), de l’aérodrome (plafond aérien) et de la route cantonale (bruit).

 

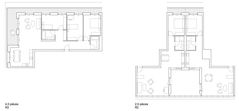
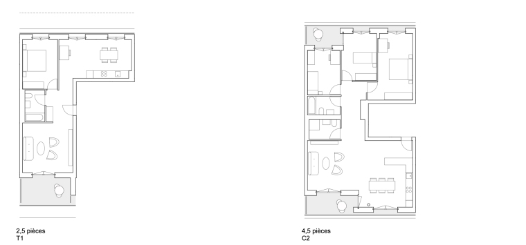
La mise en place typologique a dû prendre en considération les contraintes de la parcelle. Les quelques trois-cents appartements proposent des espaces domestiques s’adaptant à la morphologie et aux impositions normatives: des logements traversants, des logements d’angle ou des logements disposés autour de patios verticaux protégeant du risque ferroviaire.

En tête de quartier se dresse un immeuble de bureaux qui articule le lieu par son expression architecturale différenciée. Les autres volumes mettent en place des éléments horizontaux sous forme de marquises, balcons, corniches et garde-corps continus selon les directives urbanistiques.

Des éléments en serrurerie de couleur bronze claire s’insérent en syntonie avec les parties en métal strié teinté, dont les différentes nuances colorimétriques changent légèrement en fonction des immeubles.

La production énegétique s'effectue à distance à partir de l’eau du Rhône pour tout le quartier. L'ensemble est régi par le label Minergie P®. Une réinfiltration des eaux de toiture dans la nape phréatique est rendue possible grâce à une rétension des toitures végétalisées semi-intensives.