logements subventionnés, plaines-du-loup, pièce urbaine b, 1er prix, Lausanne

infos

Maître d’ouvrage  Privé
Lieu  Lausanne, Vaud
Concours  2018 - 2019
Dates projet  2018 - 2019
Dates réalisation  2019 - 2023
Surface  13'421 m2
Volume  42'878 m3
Programme 
Team projet  Philippe Meier, Rafael Eloi, Teresa Blanco, Vainius Buragas, Mathieu Meyer, Boris Lalev, Simon Marti 
Direction des travaux  Pragma Partenaires SA
Ingénieur civil  ab ingénieurs
Ingénieur cv  Tecnoservice Engineering
Ingénieur e  Tecnoservice Engineering
Ingénieur s  Tecnoservice Engineering
Acousticien  AER acousticien experts
Géomètre  LG+ Lehmann géomètre
Paysagiste  Oxalis architectes paysagistes associés
Photographes  Paola Corsini, Pierre Menoux, Nicolas Sedlatchek

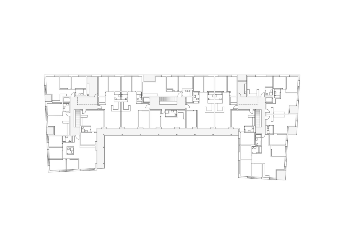
En limite de l’éco-quartier des Plaines-du-Loup, l’immeuble s’ouvre à l’ouest vers le « grand pré » qui est l’espace de référence arboré au cœur de la pièce urbaine. La volumétrie est pensée pour s’intégrer à l’environnement bâti et dégager des vues sur le paysage. 

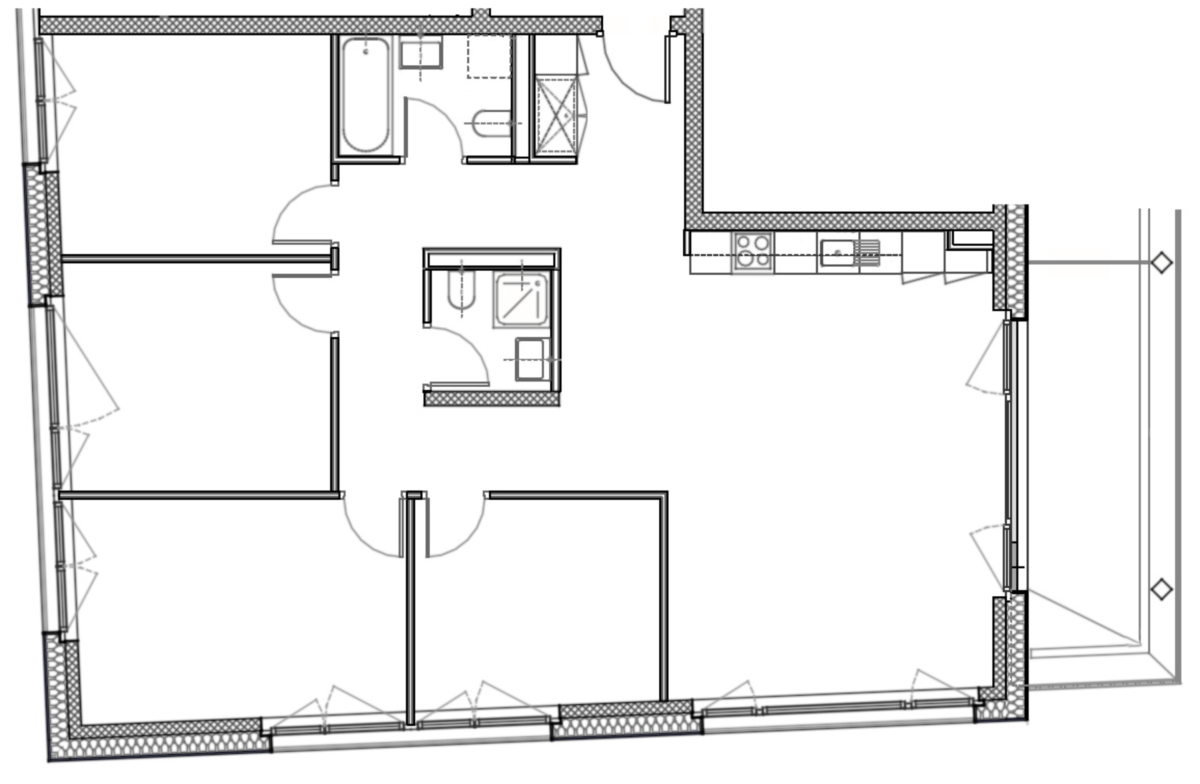
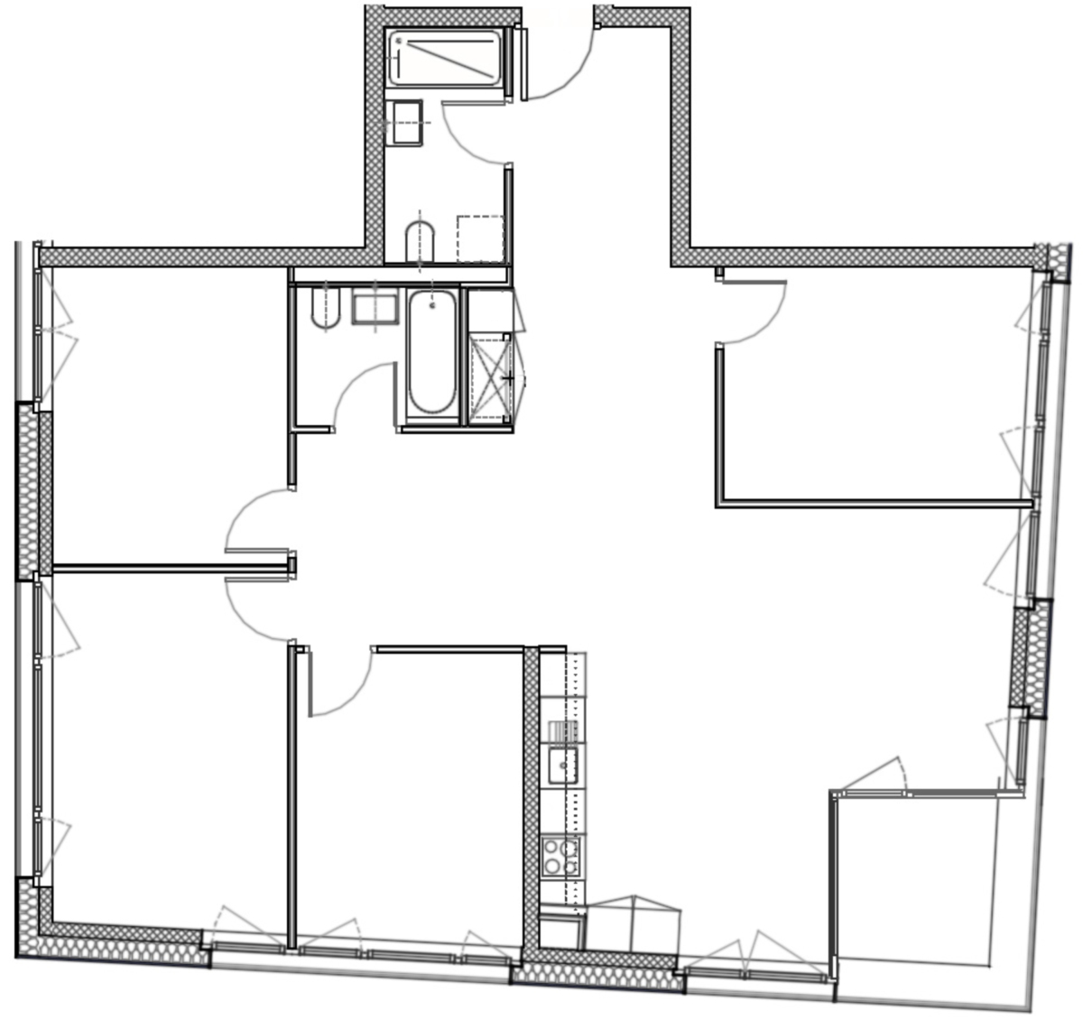
L’immeuble est constitué d’un rez- de-chaussée et de huit étages, dont deux en léger retrait. Ces retraits assurent la transition d’échelle entre le front de la route des Plaines- du-Loup et ses voisins. De grandes terrasses accompagnent l’orientation majeure des appartements dont la typologie traversante se tourne vers la nature. 

Le système distributif est pensé pour la collectivité avec des buanderies dans les étages prenant la lumière en façade. Des vides dans les cages d’escaliers permettent aux occupants de se voir, de se parler. 

L’ensemble du bâtiment est rythmé par de grandes ouvertures. La structure du bâtiment est conçue en béton pour répondre de façon efficace aux exigences statiques d’un immeuble sur 9 niveaux hors-sol. Ce béton est recyclé pour répondre aux attentes liées au développement durable pour le quartier. La façade est composée d'une isolation périphérique recouverte d’un revêtement céramique. L’ouvrage a été développé selon les critères SMEO et MINERGIE P ECO.