logements et commerces, plaines-du-loup, pièce urbaine b, 1er prix, lausanne

infos

Maître d’ouvrage  Retraites poulaires
Lieu  Lausanne, Vaud
Concours  2018
Dates projet  2018-2020
Dates réalisation  2022-2024
Surface  10'350 m2
Volume  36'300 m3
Programme  surfaces commerciales, logements collectifs et appartements pour personnes âgées
Team projet  Phlippe Meier, Rafael Eloi, Teresa Guedes, Mathieu Meyer, Michael Costa Valente, Adriano Reis, Nicolas Romain, Marcele Roncon Souza, Lucie Clerc, Loic Steiner, Noémie Bertrand, Clément Boussier
Ingénieur civil  INGENI 
Architecte paysagiste  Oxalis (projet), Paysagestion (exécution)
Ingénieur cv Weinmann-Energies
Ingénieur e  Louis Richard Ingénieurs Conseils
Ingénieur s  Crottaz consulting
Acousticien  Triform
Géomètre  BBHN
Artiste  Ariane Poncet
Photographes  Paola Corsini, Nicolas Sedlatchek, Rainer Sohlbank, meier + associés architectes

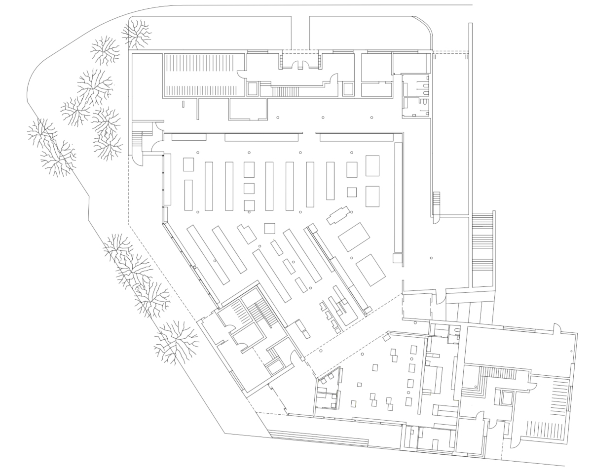
Le bâtiment situé à l’ouest de la pièce urbaine « B » se compose de deux volumes posés distincts, sur un socle. L’ensemble réalisé s’inscrit dans la silhouette du quartier qui cherche à reproduire une courbe dont le centre est plus bas que les extrémités. La disposition des immeubles offre une percée visuelle depuis l’espace semi-public situé sur la toiture-jardin, vers le grand paysage lacustre.

 La présence d’un commerce alimentaire au cœur du complexe bâti permet de faire profiter à la collectivité habitante d’un passage entre le chemin des Bossons et la placette à l’amont du « grand pré », espace végétalisé situé à cœur d’ilot. Le magasin, et ses prolongements extérieurs, deviennent des lieux de rencontres impromptues entre les voisins de tout le quartier « Métamorphose », là où se tissent les liens sociaux par le fait de l’approvisionnement quotidien. Au rez-de-chaussée, les accès sont différenciés entre les deux sortes de logements (appartements protégés pour personnes âgées d’une part et logements en location de l’autre) et les activités. Le traitement de toutes les entrées prend en compte la pente « naturelle » retrouvée, celle qui a été éradiquée par l’horizontalité des terrains de sports réalisés au siècle passé.

Aux étages, les deux types d’habitat sont clairement dissociés autour du jardin suspendu, lequel est relié avec le sol naturel par un grand escalier. Au nord, l’immeuble rectiligne accueille des appartements traversants et sur les angles, offrant des vues lointaines sur l’environnement. Le hall s’inscrit dans une coupe qui permet de relier la voie de desserte au jardin intérieur. Dans les logements destinés aux seniors, l’entrée en double hauteur relie également la rue à la terrasse, espace de délassement au bénéfice des usagers. La salle commune y trouve un emplacement stratégique. Au-dessus, les logements s’égrainent autour d’une longue cage d’escaliers dont la forme pliée offre des jeux d’ombre et de lumière.

 L’expression des façades se met en syntonie avec les autres édifices de la pièce urbaine : des terrasses continues, des balcons, des garde-corps en serrurerie ou un revêtement en brique cherchent des parentés avec les immeubles voisins. La matérialité intérieure revêt un caractère domestique avec un crépi coloré dans les espaces communs et la présence de bois naturel dans les plafonds des logements. L’ensemble bâti répond aux critères stricts d’un éco-quartier durable.