collège 'les pressoirs', 1er prix, lonay

infos

Maître d’ouvrage  Commune de Lonay
Lieu  Lonay, Vaud
Concours sur invitation  2001 (1er prix)
Dates projet  2001 - 2002
Dates réalisation  2003 - 2004
Surface  3'685 m2
Volume  14'665 m3
Programme  12 salles de classes, salles spéciales
Team projet  Philippe Meier, Frank Herbert, Jean-Christophe Mathen, Laurent Sonderegger, Marc Losenegger, Marc de Dompierre, Sylwia Braun, Jean-Daniel Pasquettaz
Ingénieur civil  Amsler & Bombeli
Ingénieur cvse  Tehnic's Energy
Géomètre  Mosini & Caviezel
Photographe  Jean-Michel Landecy

 

 

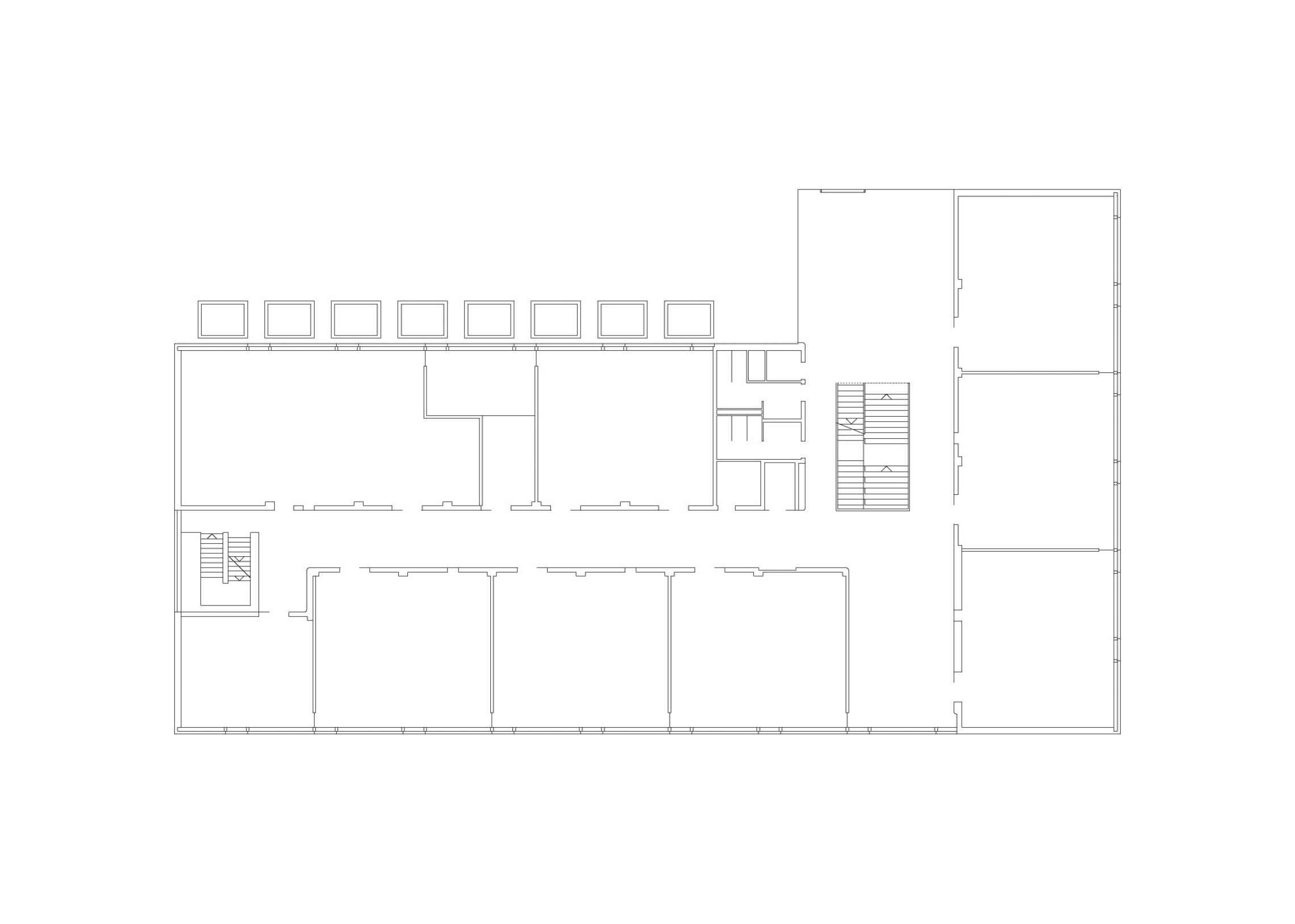
Le collège secondaire des 'Pressoirs' s’insère dans une parcelle en aval du village de Lonay. Ici, dans un coteau orienté sur le lac et les Alpes, l’autoroute et les voies ferrées tracent des sillons parallèles dans un territoire au pied d’un ultime pli du Jura. Le projet est conçu comme un volume pur en pierre, scarifié par de longues lignes horizontales en verre qui invitent ce paysage à l’intérieur. A l’angle sud-est, le prisme s’interrompt pour laisser place à un porte-à-faux qui accueille les élèves venant de la route principale. 
L’école devient alors un microcosme urbain : une distribution principale qui traverse le bâtiment de part en part sur trois niveaux, des couloirs comme des rues intérieures, des espaces de pause en regard sur l’extérieur, deux entrées principales se rejoignant dans un gradin en béton. Le plan de l’édifice scolaire est caractérisé par un choix de l’orientation des classes en fonction des différentes vues sur le paysage.

 

 

Les parties communes du collège sont matérialisées par la présence d’une feuille de bois verticale qui se déroule le long des façades intérieures en dialectique avec la structure. Le béton est laissé apparent au plafond et sur les éléments porteurs. Une grande prise de jour naturel, se jouant de la plasticité du béton armé en référence au 'canon de lumière', porte un éclairage sur l’escalier principal, tout en mettant en scène la course solaire dans un effet d’ombres et de rayons de lumière.