logements coopératifs, plaines-du-loup, pièce urbaine b, 1er prix, lausanne

infos

Maître d’ouvrage  Coopérative de l'habitat associatif (Codha)
Lieu  Lausanne, Vaud
Concours  2018
Dates projet  2018 - 2020
Dates réalisation  2020 - 2024
Surface  11'465 m2
Volume  35'535 m3
Programme 
Team projet  Philippe Meier, Rafael Eloi, Poli Gyaurova, Michaël Costa Valente, Petru Ceban, Simon Marti, Nicolas Romain, Boris Lalev
Direction des travaux  TEKHNE
Ingénieur civil  INGENI
Ingénieur cv  Chuard Ingénieurs 
Ingénieur e  PSA Perrin Spaeth & Associés 
Ingénieur s  SRG Schumacher
Acousticien  Architecture & Acoustique
Paysagiste  Oxalis architectes paysagistes associés
Géomètre  LG+ Lehmann géomètre
Photographes  Guillaume Baeriswyl, Paola Corsini, Nicolas Sedlatchek, meier + associés architectes

 

 

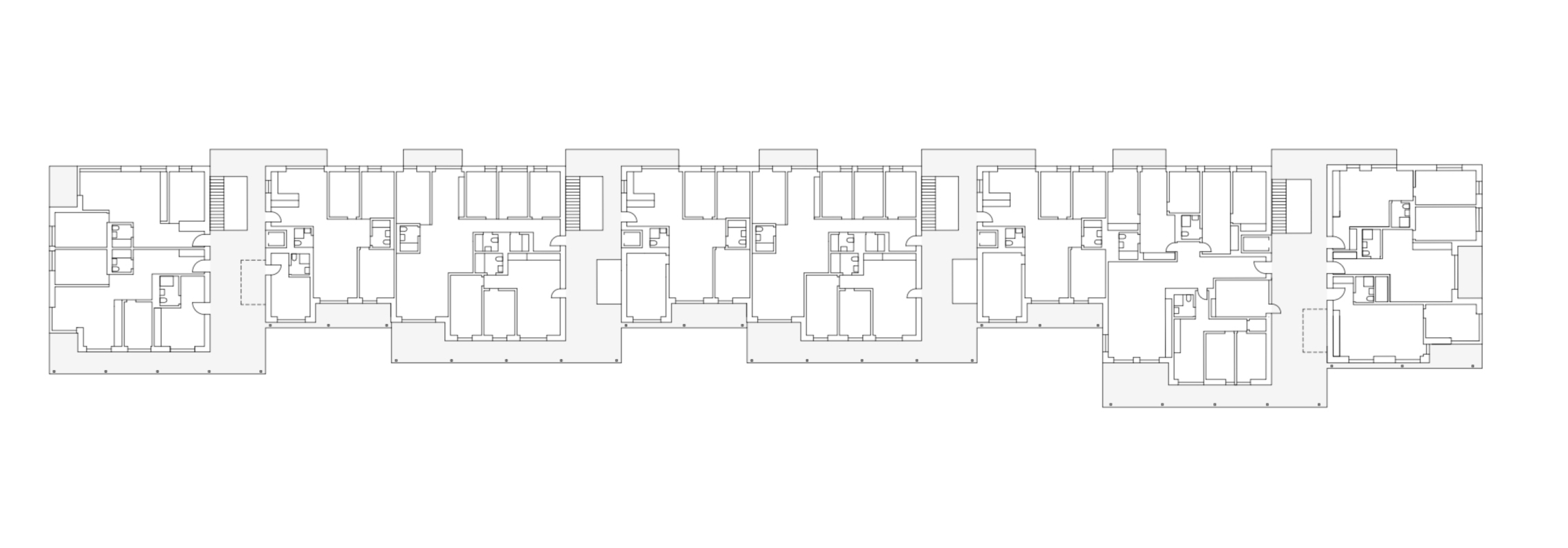
Situé au nord du « grand-pré » de la pièce urbaine B du nouveau écoquartier des Plaines du Loup, le bâtiment est composé de 5 corps reliés par un système distributif extérieur qui caractérise un mode de vie communautaire. Il est ouvert, traversant entre rue et jardin, connecté aux terrasses, et donne accès aux espaces communs – buanderie, ateliers, chambres d’amis, etc. 

Des typologies traversantes sont offertes à quasi tous les appartements avec les pièces de jour orientées vers les espaces communs et le jardin. Les « clusters », vastes appartements communautaires, proposent une manière d’habiter entre colocation et location classique. Ils permettent de conserver l’intimité d’un logement tout en mettant en commun des espaces de vie.

La structure combine le bois et le béton recyclé pour répondre aux souhaits de durabilité et de développement durable SMEO et MINERGIE P ECO. Les murs de séparation entre appartements et les niveaux en contact avec le sol sont réalisés en béton. Les planchers intérieurs sont mixtes et les murs périphériques des étages sont, quant à eux, prévus en bois lamellé-collé préfabriqué. L’isolation périphérique recouverte d’un revêtement céramique ainsi que de triples vitrages viennent compléter l’enveloppe.